Vertical Transportation Solution

The Belt Drive Elevator delivers superior performance in a space saving design. Coated steel belts have a signicantly smaller bending radius as compared to wire ropes. The steel belts also last longer than conventional steel ropes, without the need for lubrication.

The suspension Traction Media (STM) enables a smaller traction diameter of 110mm, Traction into a smaller motor size.

The suspension Traction Media (STM) enables a smaller traction diameter of 110mm, Traction into a smaller motor size.

Smart solutions for

today and tomorrow

Special functions
for the handicapped
fulfill equal carrying
in a harmonious space

Features

Space

The compact system provides architects with greater design fexibility and building owners with more rentable space.

Effciency

Our patented flat-belt technology, pioneering drives and gearless machines make the elevator among the most energy-effcient elevators on the planet.

Comfort

Our systems minimize noise and vibration and render the elevator’s movement barely perceptible, giving passengers what they’re looking for-a quiet, comfortable ride.

Reliable

Built in ISO-certied factories, with a lifetime of service in mind, every elevator offers superior reliability.

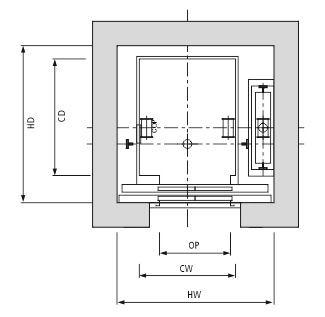
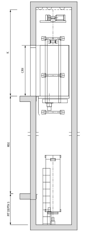
ELEVATION PLANS

AUTO DOORS

Size can be customised as per requirements all dimensions are in mm

We have 24/7 dedicated support team

At Dyna Elevators, we offer prompt technical assistance and support, Reach out to us on our 24/7 helpline number.

CUSTOMER SUPPORT
0832-2224899 or 9922410750

GET QUOTATION